2 Doppelhaushälften mit Einliegerwohnung
Osterburken, Unterer Kirchbergweg
Ihre Wahl: Ausbauhaus oder schlüsselfertiges Haus

Individuell bauen
Eigenleistung oder Rundum-Sorglos-Paket
In Osterburken entstehen zwei moderne Doppelhaushälften mit Einliegerwohnung und Platz für 2 Parteien. Auf einer Grundstücksfläche von ca. 754 m² entsteht das Wohnhaus mit einer Wohnfläche von ca. 208 m² pro Haushälfte. Für jede Haushälfte sind 4 Stellplätzen vorgesehen. Geplant ist eine massive Bauweise mit Walmdach.
Die Wohnflächen der Einzelnen Wohneinheiten belaufen sich auf ca. 77 m² im Untergeschoss und ca. 132m² im EG und OG. Die Stockwerke EG zu OG werden mit einer wohnungsinternen Treppe errichtet.
Eckdaten auf einen Blick
Doppelhaushälfte auf 3 Etagen
Platz für 2 Parteien
ca. 208 m² Wohnfläche
Wärmepumpe / Fußbodenheizung
Photovoltaikanlage
Barrierefreies Wohnen
Balkon / Terrasse / Gartenanteil
4 Stellplätze vor der Haustür
KFW 55 Förderung
Klimafreundlicher Neubau mit 100.000 € Zinsvergütung pro Wohneinheit
ES WIRD MEISTERHAFT!
Geplant, gebaut und betreut wird das Projekt von der Eckert Bauten GmbH & Co. KG. In enger Zusammenarbeit mit der Eckert Bauteam GmbH werden die 2 Doppelhaushälften unter Führung von Geschäftsführer Volker Eckert, geprüfter Restaurator, Maurermeister, freier Sachverständiger und Gebäudegutachter erbaut. Die Firma Eckert Bauteam GmbH ist seit über 60 Jahren erfolgreich im Baugewerbe vertreten.
Der smarte Weg ins eigene Zuhause
Eigenheim mit System: Planen, sparen, individuell gestalten
Der Käufer beauftragt den Bauträger als Generalunternehmen, welcher bereits die Baugenehmigung für das Doppelhaus besitzt.
Das Bauunternehmen ermöglicht jedoch den potentiellen Käufern, das noch zu teilende Grundstück, direkt von der Stadt zu kaufen, somit ergibt sich für den potenziellen Käufer eine große Einsparmöglichkeit bei der Grunderwerbsteuer, sowie den Notarkosten.
Das Grundstück ist vollständig erschlossen und kann pro Haushälfte mit ca. 60.000 Euro veranschlagt werden.
Die Innenausstattung kann mit dem Generalunternehmer individuell besprochen werden. Im Preis inklusive sind in allen Ausbaustufen, die Erdarbeiten sowie die Außenanlage nach Baubeschreibung. Je Haushälfte werden 4 Stellplätze errichtet.
Ausbaustufen mit den jeweiligen Preisen zzgl. Grundstückkauf von der Gemeinde:
Schlüsselfertig: 670.000,00 €
Ausbauhaus (ohne Heizung/Sanitär/Elektro/Wand- und Bodenbeläge): 449.000,00 €
Pro Stellplatz: 7.500,00 €
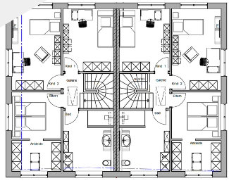
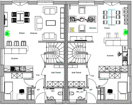
Obergeschoss

Erdgeschoss

Doppelhaushälfte ca. 132 m²
7 Zimmer
offener Wohn-Essbereich
Balkon im 1. Obergeschoss
Tageslichtbäder
Abstellraum und Hauswirtschaftsraum
Untergeschoss

Einliegerwohnung ca. 77 m²
3 Zimmer
offener Wohn-Essbereich
Terrasse und Gartenanteil
Tageslichtbad
Abstellraum und Hauswirtschaftsraum
Beispielbilder der Geschosse
OBERGESCHOSS


ERDGESCHOSS


UNTERGESCHOSS


Eckert Bauteam GmbH

Zum 9. Mal in Folge ist unser Partner Eckert Bauteam
GmbH für erstklassige Leistung ausgezeichnet
Familienunternehmen im Bereich Planung, Pojektierung und Verkauf
Wir sind Ihr vertrauenswürdiger Partner für Immobilienprojekte in Hardheim und im Umkreis. Als Familienunternehmen verfolgen wir ein klares und starkes Ziel: Die Schaffung von qualitativ hochwertigem, nachhaltigem Wohnraum, der Generationen überdauert, sowie den Bau von Gewerbeimmobilien.
Unser Leistungsspektrum umfasst die sorgfältige Planung und Projektierung von Bauvorhaben, sowohl im Hausbau als auch im Wohnungsbau. Gemeinsam mit unserem starken Partner Eckert Bauteam GmbH – das Familienunternehmen mit Tradition und 65 Jahren erfolgreicher Expertise – setzen wir Ihr Bauvorhaben um.
Eckert Bauteam ist spezialisiert auf den Bau von Massivhäusern als Einfamilienhäuser, Doppelhaushälften und Mehrfamilienhäuser, wobei wir großen Wert auf die Verwendung von erstklassigen Materialien legen.





